Skip to main content

Razvedena prizemnica

,

Više o projektu

  • PROJEKT: Obiteljska kuća Žunec
  • PROGRAM: stambeno, obiteljska kuća
  • STATUS: izvođenje 2021.
  • LOKACIJA: Sveti Ivan Zelina
  • BRUTO POVRŠINA: 160m2
  • GODINA: 2020.

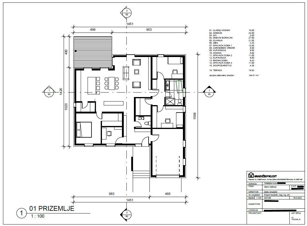
Obiteljska kuća Žunec oblikovana je prema potrebama mlade obitelji. Sastoji se od velikog open space dnevnog boravka sa blagovaonicom i kuhinjom, velike master spavaće sobe sa garderobom i dvije manje spavaće diječje sobe.

Iz ulaznog prostora omogućen je pristup u radnu/glazbenu sobu za hobi aktivnosti. Kuća prilagođena budžetu od 150 000€, a izvođenje je planirano u 2021. godini.